Edificio sede del Distretto Alto Isontino, Cormons (GO) - Casa della Comunità
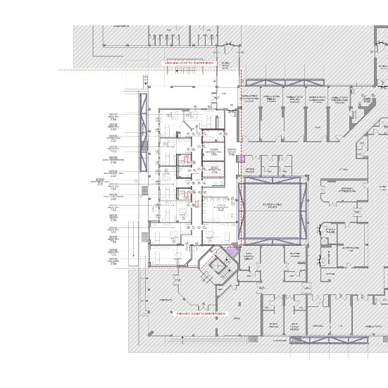
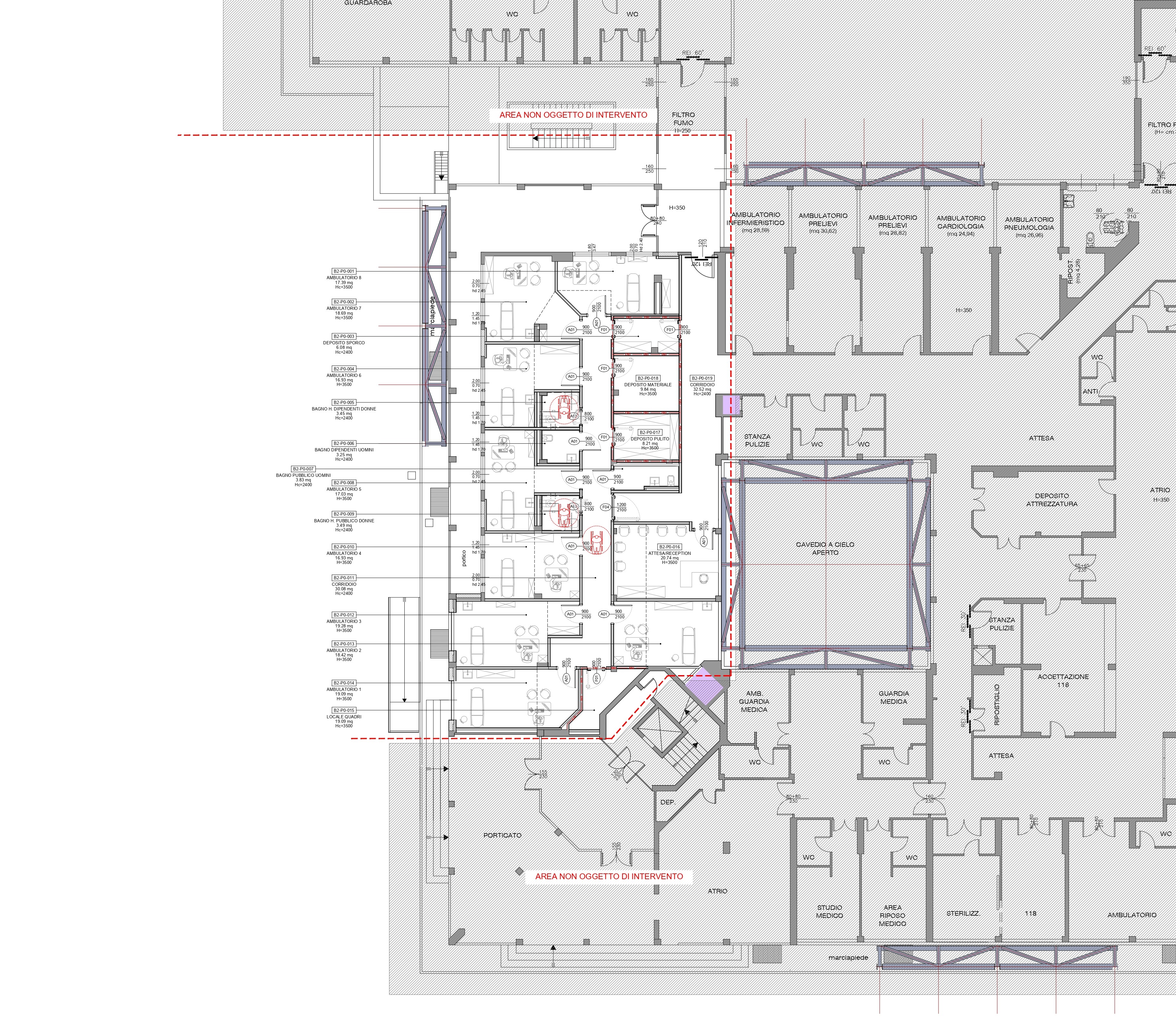
Il progetto prevede il rifacimento di una porzione del piano terra del Blocco 2 già ad oggi adibita a spazi ambulatoriali. La soluzione progettuale proposta verte sulla riqualificazione degli spazi ambulatoriali attraverso la rivisitazione e riassetto degli spazi esistenti mediante la realizzazione di nuovi spazi ambulatoriali, l’umanizzazione di tali spazi con l’inserimento di accorgimenti tali da ridurre dell’impatto del paziente all’interno di questi spazi. La Casa della Comunità (CdC) rappresenta il modello organizzativo che renderà concreta l’assistenza di prossimità per la popolazione di riferimento. Sarà infatti, il luogo fisico, di prossimità e di facile individuazione al quale il cittadino può accedere per poter entrare in contatto con il sistema di assistenza sanitaria e socio- sanitaria. La Casa della Comunità diventerà lo strumento attraverso cui coordinare tutti i servizi offerti sul territorio, in particolare ai malati cronici. Nella Casa della Comunità opererà un team multidisciplinare di medici di medicina generale, pediatri di libera scelta, medici specialistici, infermieri di comunità e altri professionisti della salute.
The project involves the renovation of a portion of the ground floor of Block 2 already used as outpatient spaces. The proposed project solution focuses on the requalification of outpatient spaces through the revisitation and rearrangement of existing spaces through the creation of new outpatient spaces, the humanization of these spaces with the inclusion of measures to reduce the impact of the patient within these spaces. The Community House (CoC) is the organizational model that will make local care for the target population a reality. In fact, it will be the physical place, of proximity and easy identification to which the citizen can access in order to come into contact with the health and social care system. The House of the Community will become the instrument through which to coordinate all the services offered on the territory, in particular for the chronically ill. The Community House will operate a multidisciplinary team of general practitioners, pediatricians of choice, specialist doctors, community nurses and other health professionals.
Missione
Salute (M6)
Investimento
M6C1 – 1.1 Case della Comunità e presa in carico della persona
Amministrazione titolare
Ministero della Salute
Soggetto attuatore
Regione Friuli Venezia Giulia
Importo finanziato
| Importo intervento | Importo RRF |
|---|---|
| 1.936.461,50 € | 1.936.461,50 € |
Stato di avanzamento
In corso
Tempo previsto fine progetto
Ultimazione lavori entro il 31/03/2026
CUP
G38I22000430006
RUP
arch. Mauro Baracetti
Luogo
Cormons, Viale Venezia Giulia, 74
Coordinate
45.95958, 13.461319
Finanziamento next generation EU







